Dessinateur bureau d etudes bâtiment et permis de construire
Dessinateur permis de construire
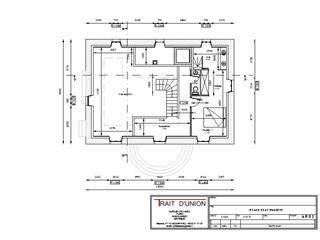
Exemples de réalisation
Construire avec la RT 2012
Etude thermique RT 2012 et attestation de prise en compte
Conception et architecture
Permis de construire formalités
Tarif permis de construire
Bureau d etudes menuiserie agencement
Dessinateur indépendant
Partenaires
Partenaires
Trait d union études contact
Conception et architecture
Permis de construire formalités
Construire avec la RT 2012
Construire avec la RT 2012

D e s s i n a t e u r   b â t i m e n t

Tél. 09 53 51 47 34

contact@traitdunionetudes.com

LA DEMANDE DE PERMIS DE CONSTRUIRE


La demande de permis de construire est un passage obligé pour la plupart des travaux de construction                         .      Je vous propose de mettre à profit cette obligation afin d'en faire une véritable étape technique pour la réussite de votre projet tout en en maîtrisant les coûts.

En prenant en compte votre cahier des charges, et dans le respect des normes et contraintes architecturales nous oeuvrons ensemble pour que vos rêves deviennent réalité.

Bien sûr durant toute la phase d' étude vous restez maître de votre projet et pouvez en modifié le contenu afin de coller au mieux à vos besoins.

  

VOTRE DOSSIER PRET A DEPOSER


Votre dossier de permis de construire vous est fourni en 5 exemplaires papier au minimum. Il est prêt à signer et déposer en mairie et comprend les documents suivant:


          - PCMI 1 Plan de situation

          - PCMI 2 Plan de masse

          - PCMI 3 Coupe sur terrain

          - PCMI 4 Notice explicative

          - PCMI 5 Plan des façades et des toitures

          - PCMI 6 Insertion paysagère 3D

          - PCMI 7 Photo de l'environnement proche

          - PCMI 8 Photo du paysage lointain

Voir prestations annexes

EXEMPLES DE DOCUMENT DU DOSSIER Cliquez pour agrandir

CAS SPECIAUX


Votre projet se situe dans le périmètre d'un bâtiment classé ou inscrit au registre des monuments historiques? Je soumets le dossier à l'architecte des bâtiments de France avant dépôt afin d'en assurer la validation.


Votre dossier nécessite d'autres documents (étude de sol attestations...) ? Je vous en informe et vous aide à les obtenir.

(Voir formalités)

Plans de permis de construire

Dessinateur indépendant

Dossier complet de permis de construire

Déposer un permis de construire

Plans de maison individuelle

ARCHITECTURE


L' architecture est l'art de construire et de concevoir des édifices, nos prestations architecturales s' articulent autour de trois principes:

 HARMONIE     -     FONCTIONNALITE     -     BUDGET

 Les règles de l'art forment les liens intimes associant ces trois principes à des éléments inérant à la région, au climat, à vos goûts personnels et dans le respect des lois et réglements liés à chaque projet.


     - La région: depuis toujours les constructions ont largement participées à l' identité des régions de part les matériaux utilisés ou leur forme.


     - Le climat: un élément essentiel qui ne peut être négligé pour optimiser le confort de votre maison. En effet la pente du toit sera influencé par les chutes de neiges, l' isolation par les températures mini et maxi, ou encore la dimension des ouvertures par l'ensoleillement.

L' importance des influences du climat à d'ailleurs fait naître diverses réglementations thermiques, dont la dernière en date est la RT 2012 qui entre en vigueur pour toutes les demandes de permis de construire une maison individuelle neuve à partir de janvier 2013.

QUE VOUS IMPOSE LA RT 2012 ?
UNE ECONOMIE D' ENERGIE !

     - Vos goûts personnels:

Si vous devez vous reconnaitre dans votre décoration intérieure, il en va de même pour l'aspect extérieur de votre habitation. Que vous souhaitiez la confondre dans le paysage ou au contraire affirmer une personnalité très contemporaine ou résolument écologique, nous élaborerons pour vous des plans conformes à vos désirs.


     - Code de l' urbanisme:

Comme dans tout projet il existe des règles auquelles vous devrez satisfaire. Le code de l'urbanisme regroupe l'ensemble des lois et dispositions réglementaires qui régissent l' urbanisme et le droit à construire en général. Il peut être compléter dans certaines communes (en général toutes les communes importantes) par le Plan Local d' Urbanisme.(PLU).


     - Plan Local d' Urbanisme (PLU):

Le PLU est un document établi par la mairie et destiné à définir la destination générale des sols. Il définit également des règles complétant ou se subtituant à celles du code de l' urbanisme et indiquant quelles formes, implantations ou proportions doivent prendre les constructions en exposant clairement les intentions de la collectivité en matière d'évolution de l' urbanisme de la commune ou de la communauté d'agglomérations.

Le PLU remplace progressivement le Plan d' Occupation des Sols (POS).

  

RT 2012
Qu'est-ce que la RT 2012

VOTRE DOSSIER DE PERMIS DE CONSTRUIRE